Silverbell Bungalow Home Plan

2425 sf

4+ Bedrooms

3+ Baths

Explore the home plan for this compact and classic bungalow. Each home plan is packed into different pricing packages to fit your construction needs best.

Silverbell Bungalow Home Plan

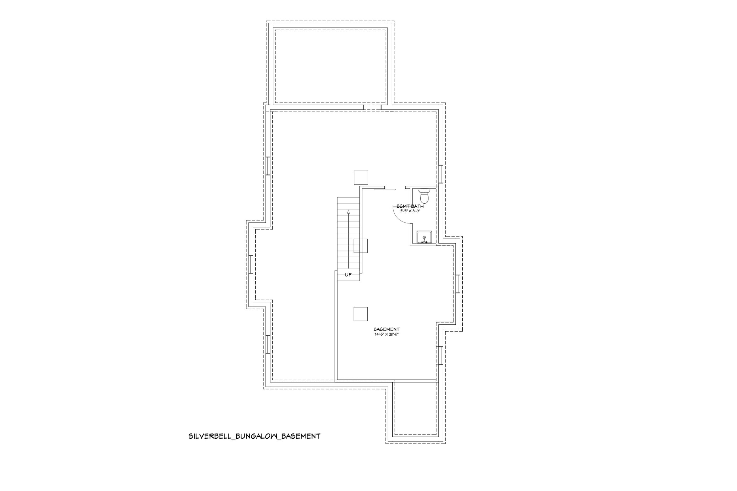
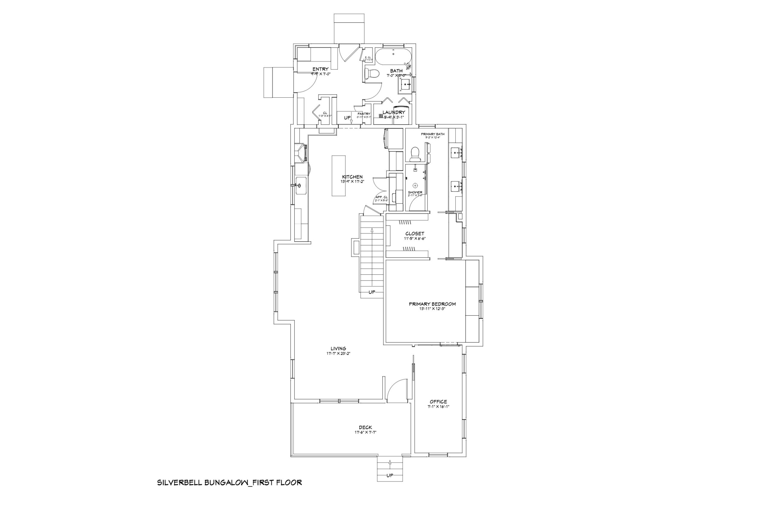
This small yet efficient home is ideal for narrow lots and especially suited to urban areas. The front door opens onto a charming and functional covered porch. Inside, the living, dining, and kitchen areas run along the left side of the house from front to back. On the right side of the first floor is a home office, followed by the primary suite with a walk-in closet and a beautiful bathroom. At the back, a mudroom connects to the driveway, back patio, kitchen, and a full bath, which includes a freestanding tub and a laundry closet.

Upstairs, the Silverbell offers a small family room, three bedrooms, and a full bathroom. The home stands only 23 feet tall—perfect for areas with height restrictions but still delivers four bedrooms. A large patio with a pergola and outdoor fireplace extends from the back mudroom.

The Silverbell Bungalow features four bedrooms, three and a half bathrooms, and a home office. With 2,425 square feet of living space and an additional 418-square-foot rear deck and patio, it’s a classic family home that makes the most of its compact footprint—perfect for urban living.

DISCLAIMER: Structural and Civil Engineering will need to be done by the Builder. Code: All drawings are in compliance with NH Building Code IBC 2015. Your builder will need to verify your local building code.

Total Living
2425 sf
Max Footprint
31' x 61'
Bedrooms
4+
Bathrooms
3+
Levels
3
Style
Bungalow
Building Costs
$$$
Materials Cost
$$$

Video Walkthrough

Frequently Asked Questions

At Abrigo Home, we’re offering home plans between $8,000 – $15,000, which include a full construction drawing set at
the lower end, with increasing plans for any add-ons you may be interested in. Amy Dutton Home’s design services alone
typically cost between $30,000 – $50,000 per client. This number varies depending on the scope of the project, timeline,
and level of Amy’s involvement.

At Abrigo Home, we’re offering home plans between $8,000 – $15,000, which include a full construction drawing set at
the lower end, with increasing plans for any add-ons you may be interested in. Amy Dutton Home’s design services alone
typically cost between $30,000 – $50,000 per client. This number varies depending on the scope of the project, timeline,
and level of Amy’s involvement.

Price is the biggest consideration. At Abrigo Home, we offer home plans ranging from $4,400 to $10,000. The lower end includes a full construction drawing set, with your preferred add-ons increasing the price. Amy Dutton Home’s design services alone typically cost between $30,000 to $50,000 per client. This figure varies depending on the scope of the project, timeline, and level of Amy’s involvement.

We’re happy to collaborate with you to ensure that the home plan you purchase meets your expectations and specific needs. There are, however, a few aspects that cannot be changed in order to maintain structural integrity and compliance with building regulations. Specifics can be found in the description of each home plan listed on our site. Generally, will not change the staircase location, roofline, or footprint of a home plan. Changing interior walls, bathroom layouts, cabinetry, and more to better meet your needs is completely attainable. Plans can also be flipped for the price of $200 (billed separately).

Yes! The rate for this service is $300/hour, and we’re happy to provide a cost estimate following an initial consultation. The process is much simpler when clients can provide the CAD or DWG files for the home plan. If you only have PDFs, it’s important to understand that we essentially need to digitally rebuild the design within our CAD software to make edits from there. Ultimately, we find that it can be more cost- and time-efficient to draw a completely custom home from the get-go for those customers.

As an architectural designer, Amy sends all completed custom home plans to your hired structural engineer to be stamped for approval. This ensures that the design adheres to all local building codes and structural requirements before construction begins.

Abrigo Home specializes in customizable home plans and design solutions. When it comes to executing those plans, we have a network of highly-regarded professionals who we’re happy to put you in touch with.