Magnolia Apartments Home Plan

3326 sf

6 Bedrooms

6 Baths

Explore the home plan for the Magnolia Apartment Building, a six-unit building as part of our ‘Magnolia’ design series. Each home plan is packaged into different pricing packages to fit your construction needs, including various expansion options.

Magnolia Apartments Home Plan

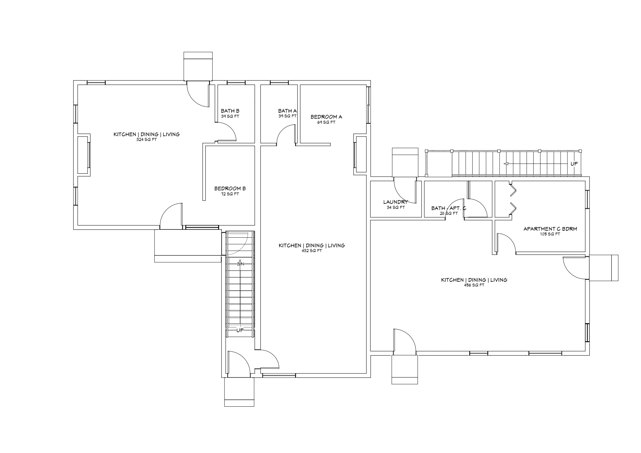
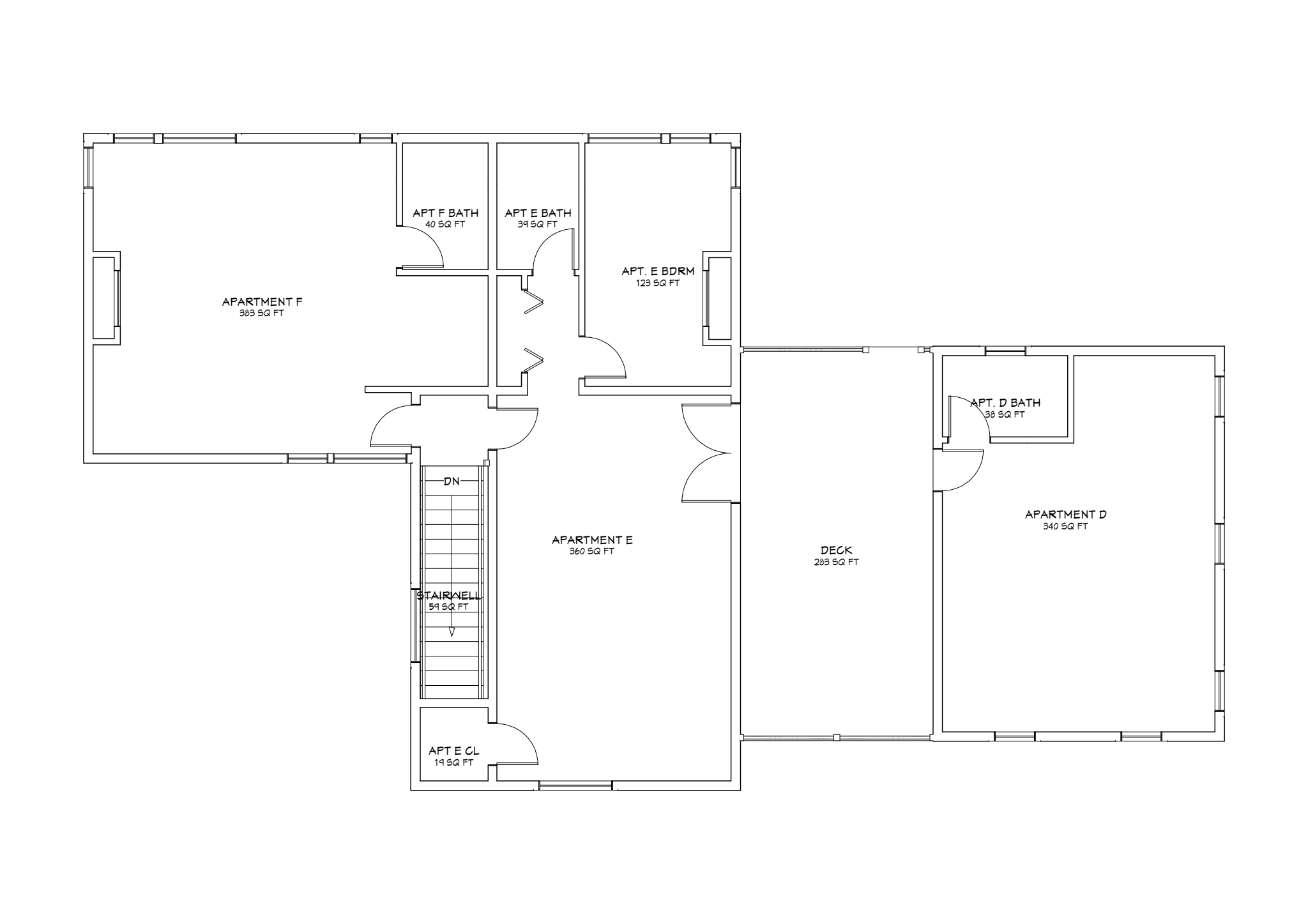
The Magnolia Apartments are the final addition to our Magnolia series, offering six distinct units in a spacious layout. With two one-bedroom units and four studios, each apartment includes a private bathroom and full kitchen, ranging from 390 to 670 square feet.

Three units are accessible via a front door and staircase, while the other three have separate exterior entrances. Apartments D and E share a second-floor deck, while A, B, and C each have a private patio.

A common laundry room is located on the main floor, with another in the basement, which also offers locked storage. Utility access is through a shared exterior door.

Our design focuses on budget-friendly aesthetics with cost-effective materials and bold accent walls. The Magnolia Apartments can easily accommodate an additional floor or expanded layouts to add more space, apartments, or storage.

DISCLAIMER: Structural and Civil Engineering will need to be done by the Builder. Code: All drawings are in compliance with NH Building Code IBC 2015. Your builder will need to verify your local building code.

Total Living
3326 sf
Max Footprint
40' x 70'
Bedrooms
6
Bathrooms
6
Levels
2
Style
Apartment
Building Costs
$$$
Materials Cost
$$$

Video Walkthrough

Frequently Asked Questions

At Abrigo Home, we’re offering home plans between $8,000 – $15,000, which include a full construction drawing set at
the lower end, with increasing plans for any add-ons you may be interested in. Amy Dutton Home’s design services alone
typically cost between $30,000 – $50,000 per client. This number varies depending on the scope of the project, timeline,
and level of Amy’s involvement.

At Abrigo Home, we’re offering home plans between $8,000 – $15,000, which include a full construction drawing set at
the lower end, with increasing plans for any add-ons you may be interested in. Amy Dutton Home’s design services alone
typically cost between $30,000 – $50,000 per client. This number varies depending on the scope of the project, timeline,
and level of Amy’s involvement.

Price is the biggest consideration. At Abrigo Home, we offer home plans ranging from $4,400 to $10,000. The lower end includes a full construction drawing set, with your preferred add-ons increasing the price. Amy Dutton Home’s design services alone typically cost between $30,000 to $50,000 per client. This figure varies depending on the scope of the project, timeline, and level of Amy’s involvement.

We’re happy to collaborate with you to ensure that the home plan you purchase meets your expectations and specific needs. There are, however, a few aspects that cannot be changed in order to maintain structural integrity and compliance with building regulations. Specifics can be found in the description of each home plan listed on our site. Generally, will not change the staircase location, roofline, or footprint of a home plan. Changing interior walls, bathroom layouts, cabinetry, and more to better meet your needs is completely attainable. Plans can also be flipped for the price of $200 (billed separately).

Yes! The rate for this service is $300/hour, and we’re happy to provide a cost estimate following an initial consultation. The process is much simpler when clients can provide the CAD or DWG files for the home plan. If you only have PDFs, it’s important to understand that we essentially need to digitally rebuild the design within our CAD software to make edits from there. Ultimately, we find that it can be more cost- and time-efficient to draw a completely custom home from the get-go for those customers.

As an architectural designer, Amy sends all completed custom home plans to your hired structural engineer to be stamped for approval. This ensures that the design adheres to all local building codes and structural requirements before construction begins.

Abrigo Home specializes in customizable home plans and design solutions. When it comes to executing those plans, we have a network of highly-regarded professionals who we’re happy to put you in touch with.