
Linden Farmhouse
House Plan Overview
The Linden Farmhouse is a perfect Amy Dutton Unfold project and has already been built, close to completion in Kensington, NH.
The house is wide, so it is best to have a large lot or at least 1 acre. The outside aesthetic is very classic, with sweeping, beautiful lines. A huge front porch creates a lovely space to hang out in while waiting for the bus and just relaxing on a nice Sunday afternoon. The back of the house is perfect for a private space to entertain on the patio or on the screen porch on those buggy summer evenings.
The interior has an open-concept floor plan with a kitchen/pantry, lining, and dining room. The mudroom is right off the garage and has a large closet with benches and an organization center. The study/office is nicely tucked away for privacy.
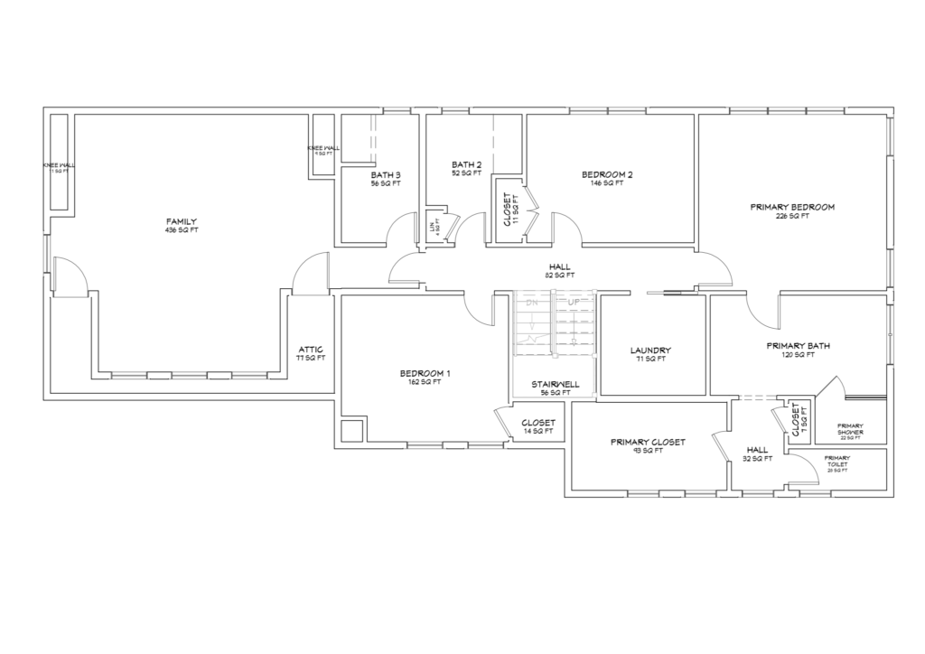
The second floor has a primary suite, laundry, two bedrooms, and a common bathroom. There is also a family room over the garage that has amazing space, a private bathroom, and a wet bar.
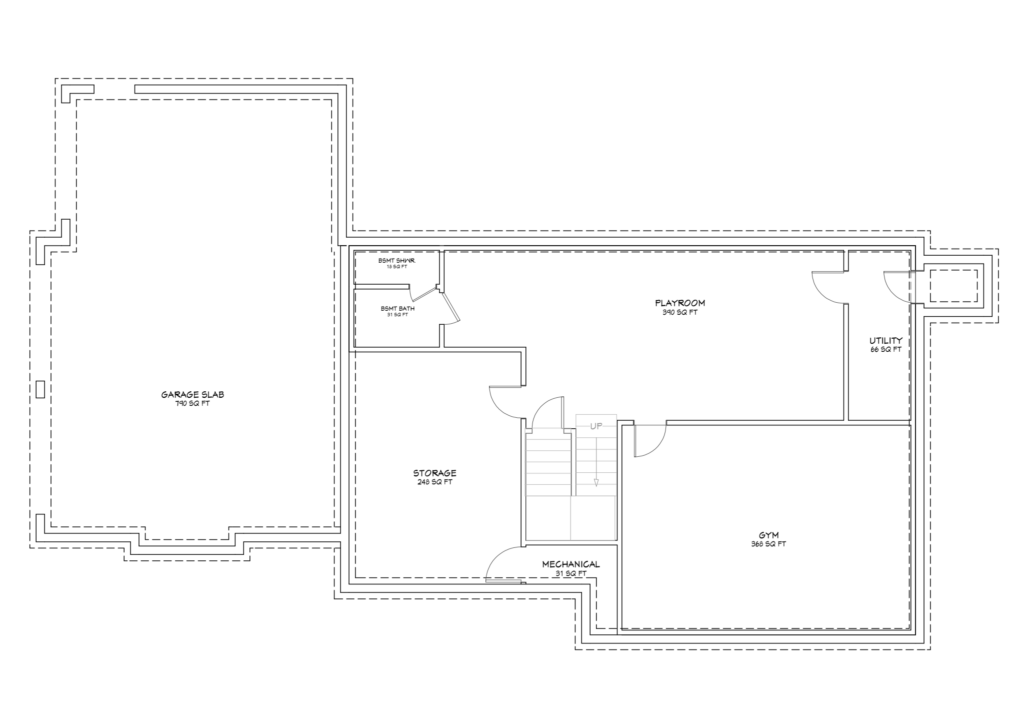
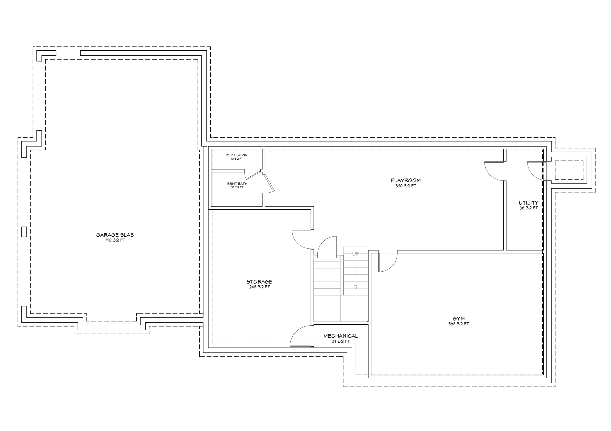
There are options to expand the house into the Attic, which would include one bedroom, one bathroom, open space, or another bedroom. The basement also has a ton of space for a gym, playroom, storage, and a full bath.
This house is perfect for a growing family. Just the first and second floors total 3387 sf, and with the garage and porches, the total is 4885 sf. The addition of the third floor and basement will only add square footage (plus cost) where you need it.
Specifications
There are options to expand the house into the Attic, which would include one bedroom, one bathroom, open space, or another bedroom. The basement also has a ton of space for a gym, playroom, storage, and a full bath.
This house is perfect for a growing family. Just the first and second floors total 3387 sf, and with the garage and porches, the total is 4885 sf. The addition of the third floor and basement will only add square footage (plus cost) where you need it.
We can only customize this home by moving around the interior walls and windows. The staircase and roofline need to stay in the exact locations.

































